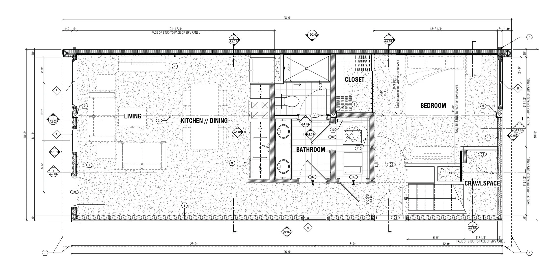
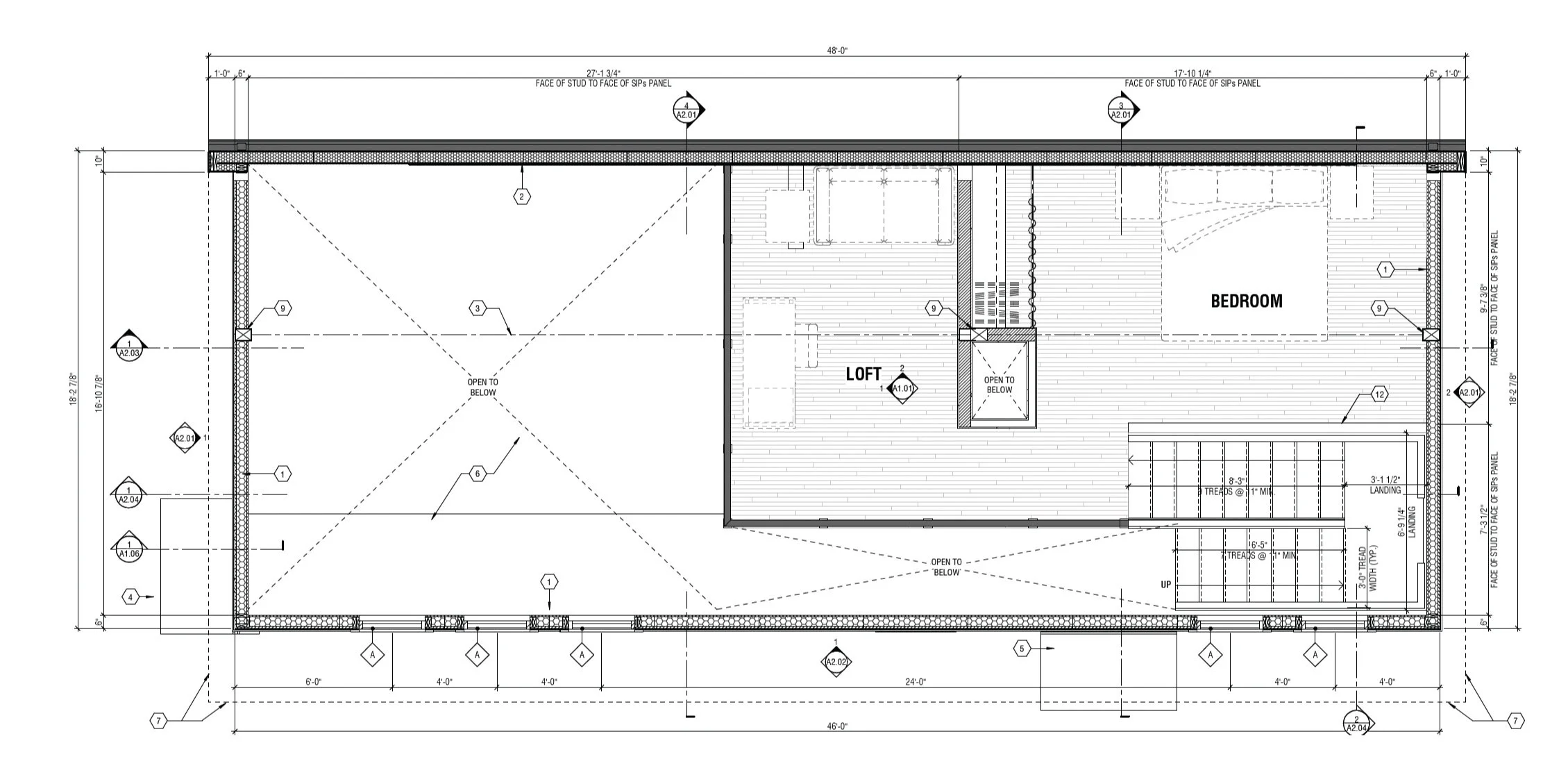
lofthaus

1,191 SF | 2 Bed | 1 Bath

Previous
Previous

ranchaus 1.0

Next
Next

futurehaus