ranchaus

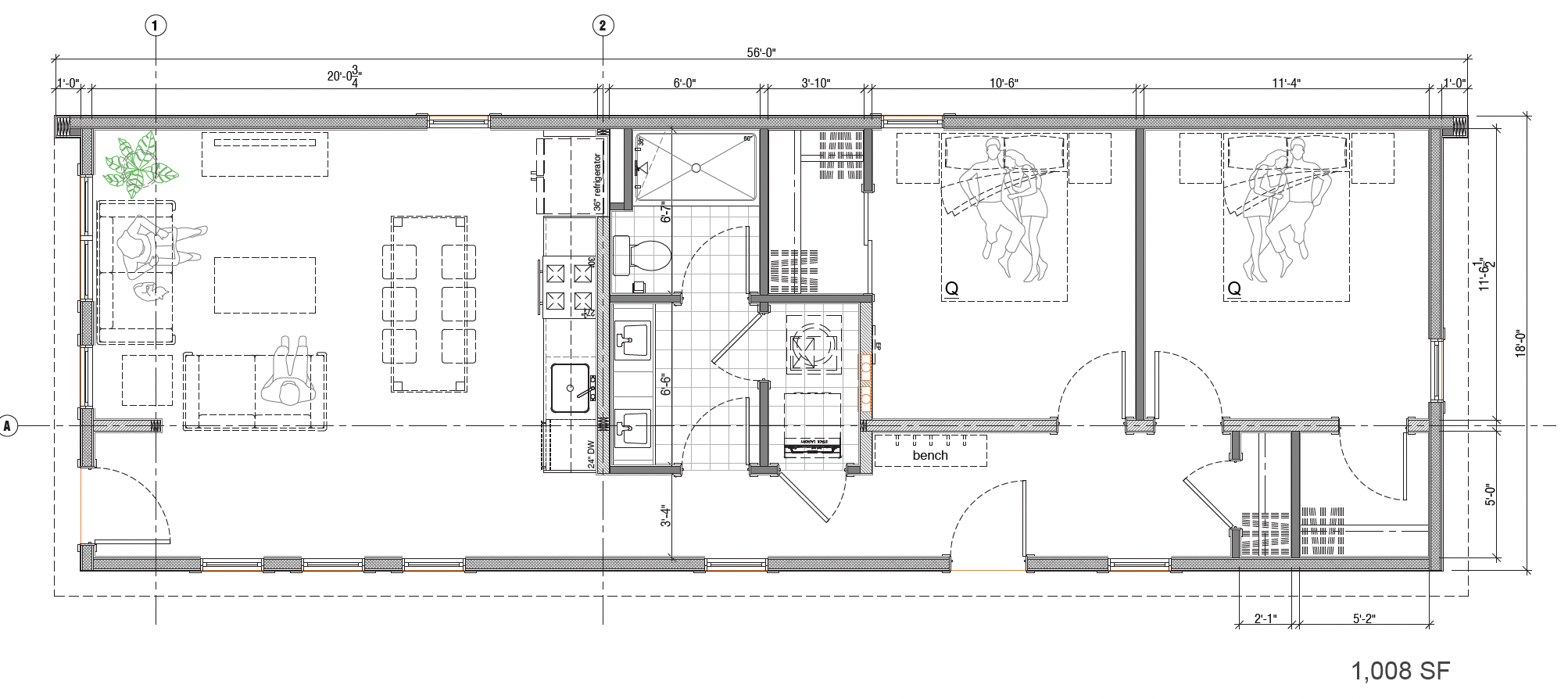
1,008 SF | 2 Bed | 1 Bath

Previous
Previous

ranchaus 2.0

Next
Next

lofthaus