002_Ave Columbus OH 43223 USA.jpg

ranchaus 2.0

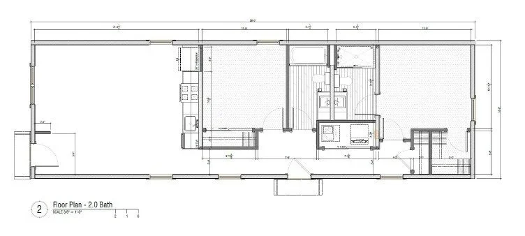
1,200 SF | 2 Bed | 2 Bath

Previous
Previous

2025haus

Next
Next

ranchaus 1.0